Loading ...
close

قالب اکستروژن آلومینیوم

logo
قالب اکستروژن آلومینیوم

 

 

قالب اکستروژن آلومینیوم چیست؟

 از قالب اکستروژن آلومینیوم در فرآیند تولید پروفیل آلومینیوم با روش اکستروژن  استفاده می شود. قالب های  اکستروژن دیسک های فولادی  هستند که فرم دهانه وروردی و خروجی با فرم و اندازه های مقطع مورد نظر در پروفیل تولید شده یکسان است . در فرآیند اکستروژن بیلت یا شمش آلومینیوم  حرارت دیده در دما و فشار بالا در دستگاه پرس اکستروژن از میان قالب عبور داده می شوند تا پروفیل با فرم و مقطع طراحی شده خارج  تا اصطلاحا اکسترود می شود. جنس قالب باید حتما از فولاد مقاوم بدلیل شراطی سخت ( فشار و دمای بالا)  انتخاب شود . ساخت قالب اکستروژن آلومینیوم . نیاز به دانش و مهارت زیادی دارد. دقت در طراحی و ساخت قالب اکستروژن در کیفیت پروفیل آلومینیوم تاثیر زیادی دارد.

 

 آلوم فرم با داشتن مهندسان با تجربه و متخصص در طراحی و ساخت قالب اکستروژن آلومینیوم، قالب مورد نظر شما را در کوتاه ترین زمان با بهترین تجهیزات و کیفیت طراحی میکند. ما تجریه ساخت بیش از 700 قالب اکستروژن را درکارنامه خود داریم.

 

 انواع قالب اکستروژن

قالب‌ اکستروژن آلومینیوم  را بر اساس شکل و کاربردشان به دسته‌های مختلفی  می توان تقسیم‌بندی کرد که هر کدام برای تولید پروفیل‌های خاصی مورد استفاده قرار می‌گیرند. انواع قالب اکستروژن به شرح زیر :

 

1. قالب‌های سالید یا توپر (Solid Dies)

این نوع قالب‌ها برای تولید پروفیل‌های توپر استفاده می‌شوند که هیچ حفره یا سوراخ داخلی ندارند مانند میله‌ها، لوله‌ها و مقاطع مستطیلی. بدلیل ساختار ساده هزینه ساخت و تولید نسبتا پایینی دارند . قالب سالید به سه دسته میشوند از جمله:

 فلت فیس flat- face

 قالب پاکت pochet

 قالب فیدر fider

 

2. قالب‌های توخالی (Hollow Dies)

این نوع قالب‌ها برای تولید پروفیل‌های توخالی که دارای حفره‌های داخلی هستند، استفاده می‌شوند. قالب‌های توخالی به دو دسته اصلی تقسیم می‌شوند:

 

  قالب‌های ماندرلی (Mandrel Dies)

این قالب‌ها دارای ماندرل داخلی هستند که حفره‌های داخلی پروفیل را شکل می‌دهدو برای تولید لوله‌ها، پروفیل‌های با شکل‌های پیچیده و توخالی استفاده می شوند. از مزیتهای این نوع قالب می توان توانایی تولید پروفیل‌های با پیچیدگی بالا و استحکام مناسب را نام برد

 

  قالب‌های بریج (Bridge Dies) یا اسپایدر (Spider Dies)

این قالب‌ها دارای بخش‌هایی هستند که ماندرل را در جای خود نگه می‌دارند و جریان آلومینیوم را به دو قسمت تقسیم می‌کنند که در نهایت دوباره به هم می‌پیوندند.و برای تولید پروفیل‌های توخالی با استحکام بالا و دقت ابعادی استفاده می شوند. ویژگی مهم این نوع قالب، کاهش فشار داخلی و بهبود جریان مواد است.

 

3. قالب‌های نیمه توخالی (Semi-Hollow Dies)

این قالب‌ها برای تولید پروفیل‌هایی که دارای یک حفره باز یا نیمه باز مانند: پروفیل‌هایی مانند C-شکل‌ها، U-شکل‌ها و دیگر مقاطع نیمه توخالی استفاده می‌شوند. از ویژگی های این نوع قالب میتوان  توانایی تولید پروفیل‌های پیچیده و چندمنظوره و طراحی ترکیبی که شامل اجزای توپر و توخالی را برشمرد.

 

قالب اکستروژن آلومینیوم

 

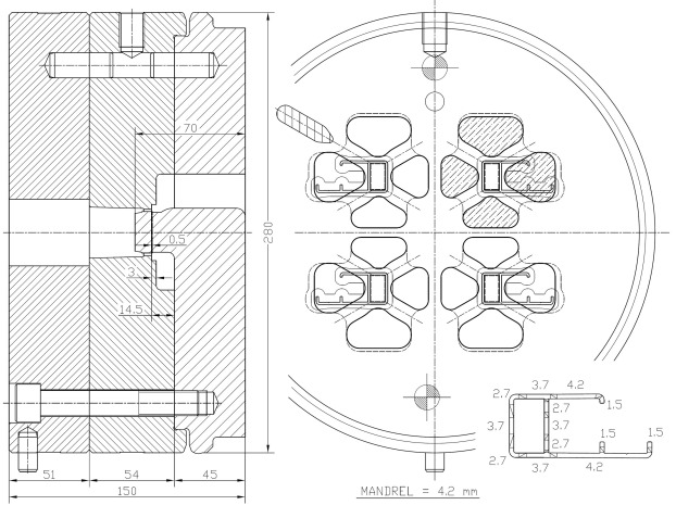
4. قالب‌های چندگانه (Multiple Dies)

این نوع قالب‌ها برای تولید همزمان چندین پروفیل مشابه یا متفاوت جهت افزایش بهره‌وری و کاهش زمان تولید برای پروفیل‌های کوچک و متوسط استفاده می‌شوند. چون دارای چندین مقطع قالب در یک مجموعه هستند در افزایش بهره‌وری بالا و کاهش هزینه تولید نقش مهمی را ایفا می کنند

 

5. قالب‌های مرکب (Compound Dies)

این قالب‌ها ترکیبی از قالب‌های مختلف هستند و برای تولید پروفیل‌های صنعتی پیچیده و چندمنظوره استفاده می‌شوند. این نوع قالب ها شامل بخش‌های مختلف برای تولید چندین جزء پروفیل در یک مرحله می باشند . کاهش مراحل تولید و افزایش دقت ابعادی از ویژگی های مهم قالب‌های مرکب می باشد.

 

6. قالب‌های پله‌ای (Stepped Dies)

این قالب‌ها برای تولید پروفیل‌هایی با تغییرات در مقطع عرضی در طول پروفیل و یا با ویژگی‌های خاص مانند تغییر ضخامت دیواره استفاده می‌شوند. طراحی قالب به گونه‌ای که مقطع عرضی پروفیل به تدریج تغییر می‌کند و انعطاف‌پذیری در طراحی پروفیل آلومینیوم افزایش می دهد.

7. قالب‌های توربولانس (Turbulence Dies)

این قالب‌ها برای تولید پروفیل‌هایی با سطح داخلی پیچیده که برای کاربردهای خاص مانند مبدل‌های حرارتی  استفاده می شوند. طراحی داخلی قالب توربولانس به گونه‌ای که جریان آلومینیوم به صورت آشفته حرکت کند تا منجر به ایجاد ویژگی‌های سطحی خاص در پروفیل‌ها شود.

  جنس قالب اکستروژن  از فولاد H13  که بسیار مقاوم در برابر دما و فشار بالا و می تواند اصطکاک بالا را نیز تحمل کند است . استفاده از این نوع فولاد دوام و عمر قالب را افزایش میدهد که این خود می تواند تا اندازه چشمگیری در  پایین آوردن هزینه های تولید پروفیل آلومینیوم تاثیر داشته باشد

 

 

 

اجزای قالب اکستروژن

قالب اکستروژن آلومینیوم از چندین قسمت کلیدی و مهم تشکیل شده است که هر قسمت  در روند و پروسه اکستروژن آلومینیوم نقش خود را ایفا می کنند . دقت در طراحی  و استفاده از متریال استاندارد در ساخت هر قسمت تاثیرمستقیم و چشمگیری در کیفیت پروفیل آلومینویم تولید شده، دارند. اجزا و قسمتهای قالب اکستروژن شامل :

 

 

 

اجزا قالب اکستروژن

 

1. صفحه قالب (Die Plate): 

این بخش اصلی قالب است که مقطع پروفیل مورد نظر را تعیین می‌کند بیلت آلومینیوم مذاب از صفحه قالب تحت فشار عبور می کند و شکل و فرم مقطع طراحی شده را به خود می گیرد. این قسمت از فولاد گرم کار ساخته می شود .

 

2- ماندرل (Mandrel): 

این قسمت در قالب های توخالی و نیمه توخالی بکار گرفته می شود از ماندرل برای ایجاد حفره های توخالی استفاده می‌شود و در مرکز قالب قرار جاسازی می شود. این قسمت ( ماندرل)  را قطعه پشتیبان ماندرل (Mandrel Support) را در جای خود نگه می‌دارد و از انحراف آن جلوگیری می‌کند.

 

 

 

 

اجزا قالب اکستروژن

 

3- پشتیبان (Backer):

این بخش پشت قالب قرار می‌گیرد و فشار ناشی از سمبه و جریان بیلت را روی تمامی قسمتها پخش می کند  تا از تغییر شکل قالب جلوگیری کند.

 

4- نگهدارنده قالب (Die Holder):

نگهدارنده‌ای که قالب را در جای خود ثابت نگه می‌دارد تا از جابجایی قالب حین عملیات جلوگیری می کند

 

5- بلاستر (Bolster):

بخش‌هایی که به توزیع یکنواخت فشار در قالب کمک می‌کنند و از تغییر شکل قالب جلوگیری می‌کنند.

 

6-  کلاهک قالب (Die Cap):

کلاهک که روی قالب قرار می‌گیرد و از آن محافظت می‌کند. این قسمت ممکن است دارای ویژگی‌هایی برای هدایت و تثبیت جریان آلومینیوم باشد.

 

 

 

روش ساخت قالب آکستروژن

به طور کلی دو روش برای طراحی و ساخت قالب اکستروژن آلومینیوم وجود دارد. روش سنتی و روش CAM/CAD. در روش سنتی از ابزار برش و دستگاههای بزرگ استفاده می شود. اما در روش دوم که امروزه محبوبیت زیادی پیدا کرده است طراحی قالب توسط رایانه با دقت بسیار بالا و دقیق انجام می شود و با خروجی شبیه سازی شده، اجرای نقشه و ابعاد را توسط دستگاه cnc را با دقت زیاد امکان پذیر می کند.

در روش جدید این امکان برای تولیدکننده فراهم شده است تا از تعداد تست و دفعات اصلاح قالب کم شده و عمر قالب ها بیشتر شود و این امر در بهره وری بیشتر تولید و قالب سازی اکستروژن موثر است.

مزایای روش CAM/CAD:

 دقت بالا و تلرانس برابر قطعات

 تولید قطعات در حجم بالا

 امکان کپی مجدد در صورت تکرار پذیری و حذف زمان طراحی مجدد

 کیفیت بالای پروفیل آلومینیوم به دلیل استفاده از دستگاه cnc

 عمر بالای قالب

 امکان اصلاح قالب پس از شبیه سازی

 امکان استفاده از قالبها برای مواد مختلف

 

 

ساخت قالب اکستروژن

طراحی و ساخت قالب اکستروژن آلومینیوم یک فرآیند پیچیده و پر از چالش است که نیاز به دقت بالا و تخصص و تجربه کافی دارد مراحل ساخت قالب اکستروژن در مجتمع صنعتی آلوم فرم به ترتیب :

 

تحلیل نیازها و مشخصات پروفیل آلومینیوم

 دریافت مشخصات پروفیل آلومینیوم مورد نظر کارفرما، شامل ابعاد، شکل مقطع، و ویژگی‌های مکانیکی جهت تحلیل و بررسی کاربرد نهایی پروفیل آلومینیوم از نقطه نظر شرایط محیطی و فیزیکی برای تعیین الزامات دقیق قالب اکستروژن

 

 

 

 

 

 

طراحی قالب اکستروزن

 

طراحی قالب اکستروژن

 طراحی قالب اکستروژن شامل دو مرحله:

1-  طراحی اولیه قالب  و شبیه سازی جریان مواد 

 طراحی اولیه قالب: در این مرحله با استفاده از نرم افزارهای طراحی مانند AutoCAD یا SolidWorks مدل سه‌بعدی قالب طراحی می شود

 شبیه‌سازی جریان مواد: از نرم‌افزارهای شبیه‌سازی مانند ANSYS یا Altair HyperXtrude  برای تحلیل و بهینه‌سازی جریان مواد در قالب و اطمینان از پر شدن کامل قالب بدون نقص استفاده می شود

 

2- تائید طراحی و بهینه‌سازی

 بررسی طراحی: بررسی مدل سه‌بعدی توسط تیم فنی و کارفرما برای اطمینان از مطابقت با نیازهای تعیین شده.

 بهینه‌سازی:  در صورت  نیاز انجام اصلاحات و بهینه‌سازی طراحی بر اساس بازخوردها و نتایج شبیه‌سازی شده

 

ساخت قالب پروفیل آلومینیوم

ساخت قالب پروفیل آلومینیوم از پر چالش ترین قسمت این فرآیند است که شامل:

انتخاب متریال : انتخاب فولاد مناسب برای ساخت قالب بر اساس نیازها، عملکرد و داده ها

 

 فولاد قالب اکستروژن

در ساخت قالب‌های اکستروژن از فولاد گرم کار مانند H13، H11 و H21 ، به دلیل ویژگی‌های منحصر به فرد آنها در مقاومت به حرارت، سایش و چقرمگی استفاده می شود. این طیف از آلیاژفولاد گرم می تواند در عملکرد مناسب در شرایط سخت و افزایش عمر و دوام قالب اکستروژن تاثیر زیادی داشته باشد

 

 

ماشین‌کاری اسپارک (EDM Machining)

 ماشین EDM سیمی (Wire EDM): برای برش دقیق قطعات و ایجاد اشکال پیچیده در قالب.

 ماشین EDM قالبی (Sinker EDM): برای ایجاد حفره‌ها و جزئیات دقیق در قالب.

 

ماشین‌کاری قالب (Die Machining)

 ماشین‌آلات تراش CNC: برای ایجاد اشکال گرد و استوانه‌ای در قالب.

 ماشین‌آلات فرز CNC: برای برش و شکل‌دهی دقیق قطعات قالب بر اساس مدل CAD.

 

 

 

 

 

 

 

 

ماشین‌آلات سنگ‌زنی (Grinding Machines)

 سنگ‌زنی سطحی (Surface Grinding): برای صاف و هموار کردن سطوح قالب.

  سنگ‌زنی استوانه‌ای (Cylindrical Grinding): برای پرداخت قطعات استوانه‌ای.

 

 عملیات حرارتی (Heat Treatment)

 سخت‌کاری (Hardening): عملیات حرارتی برای افزایش سختی و مقاومت در برابر سایش.

 تمپرینگ (Tempering): کاهش تنش‌های داخلی و افزایش چقرمگی پس از سخت‌کاری.

 نیتریدینگ (Nitriding): افزایش سختی سطحی و مقاومت در برابر سایش با افزودن نیتروژن به سطح قالب.

  کربوریزه کردن (Carburizing): افزایش سختی سطحی از طریق افزودن کربن به سطح فولاد.

 

 پرداخت نهایی (Finishing)

  پولیش‌کاری (Polishing): برای صاف و براق کردن سطح قالب.

  سندبلاست (Sandblasting): برای تمیز کردن و آماده‌سازی سطوح قالب.

 بررسی و اصلاح نهایی: بررسی دقیق ابعاد و تلرانس‌ها و انجام اصلاحات نهایی در صورت نیاز.

 

 مونتاژ و تائید نهایی

 مونتاژ قالب:   در این مرحله قطعات قالب اسمبل مونتاژ می شوند

 تست و تائید نهایی: تست قالب با استفاده از دستگاه‌های کنترل کیفیت (CMM) و ابزارهای دقیق جهت بررسی  و کنترل نهایی ابعاد و تلرانس‌ها

 

آماده‌سازی برای تولید

 پیش‌گرم قالب :قالب برای آماده سازی جهت تولید و رسیدن به دامای مناسب پیش گرم می شود

 نصب قالب:  قالب روی دستگاه پرس اکستروژن نصب و دستگاه برای شروع تولید آماده می شود. 

 

تولید آزمایشی (Trial Production)

  تولید آزمایشی:  برای بررسی و کنترل نهایی عملکرد قالب اکستروژن و کیفیت پروفیل تولید شده یک یا چند سری تولید آزمایشی انجام می شود.

  کنترل کیفیت: کنترل کیفی پروفیل تولید شده از نظر استاندارد و مشخصات تعیین شده انجام می شود

  بهینه‌سازی نهایی  :درصورت نیاز اصلاحات نهایی روی قالب بر اساس نتایج تولید آزمایشی  صورت می گیرد

  و پس انجام تمامی مراحل و تایید کنترل کیفی قالب و پروفیل، تولید انبوه همراه با پایش مستمر کنترل و بازرسی شروع می شود.

این مراحل به طور متوالی و دقیق انجام می‌شوند تا قالب اکستروژن با کیفیت بالا و قابلیت تولید مستمر و بدون نقص تولید شود. هماهنگی بین تیم‌های مختلف طراحی، ساخت، و کنترل کیفیت از اهمیت بالایی برخوردار است.

 

 

 

 

 

 

 

 

 

 

 

 

 

 

 اعتماد شما، وجه متمایز ماست

 

مجتمع صنعتی آلوم فرم  با پشتوانه سالها تجربه در ساخت صدها قالب اکستروژن، توانسته  گامی بلند در جهت تولید با کیفیت بردارد. واحد طراحی و ساخت قالب اکستروژن آلومینیوم  مجتمع صنعتی آلوم فرم امکان ساخت انواع قالب اکستروژن براساس سفارش و نیاز کارفرما بصورت کاملا انحصاری و با رعایت استاندارد در کوتاهترین زمان ممکن و با قیمت مناسب فراهم نموده است 

 

 

 

 

قیمت قالب اکستروژن

برآورد و محاسبه قیمت ساخت قالب اکستروژن بطور معمول در پروژهای کوچک بصورت تخمینی ولی در پروژهای بزرگ باید و حتما بصورت دقیق انجام می شود. قیمت و هزینه ساخت قالب اکستروژن آلومینیوم بستگی به فاکتورهای مهم و تعیین کننده ای که فهرست آن در ذیل توضیح داده شده دارند

قیمت ساخت قالب اکستروژن شامل موارد :

 

  هزینه‌های ماشین‌کاری (Machining Costs)

ماشین‌کاری CNC برش و شکل‌دهی قالب

دستگاه‌های EDM برای برش دقیق

دستگاه‌های سنگ‌زنی ، پرداخت و پولیش‌کاری

 

 مواد اولیه (Material Costs)

نوع فولاد:  قیمت فولاد بکار رفته در ساخت قالب بسته به نوع و کیفیت مانند H13، H11، H21

مقدار فولاد: وزن و حجم فولاد  بکار رفته در ساخت قالب.

سایر: مواد مصرفی مانند الکترودهای EDM، ابزارهای برشی و ....

 

 طراحی (Design Costs)

طراحی CAD:  هزینه طراحی اولیه و مدل‌سازی سه‌بعدی قالب و همچنین شبیه‌سازی جریان مواد و بهینه‌سازی طراحی قالب  

 

  عملیات حرارتی (Heat Treatment Costs)

سخت‌کاری و تمپرینگ: هزینه‌های عملیات حرارتی برای افزایش سختی و چقرمگی قالب.

نیتریدینگ و کربوریزه کردن: هزینه‌های عملیات حرارتی سطحی برای افزایش سختی سطحی

 

  نگهداری و تعمیرات (Maintenance and Repair Costs)

بازرسی مستمر : هزینه‌های بازرسی و بررسی دوره‌ای قالب‌ها.

تعمیر و بازسازی: هزینه‌های تعمیر و بازسازی قالب‌ها در صورت نیاز.

 و در آخر هزینه های جانبی مانند نیروی متخصص، هزینه های عمومی

 

  مونتاژ و تست (Assembly and Testing Costs)

مونتاژ قالب: هزینه‌های مونتاژ قطعات مختلف قالب

تست اولیه: هزینه‌های انجام تولید آزمایشی و بررسی کیفیت پروفیل‌های تولید شده

 

 

 

 

 

 انتخاب قالب اکستروژن آلومینیوم

 انتخاب قالب مناسب بستگی به چندین عامل نکات مهم دارد:

  نوع و شکل پروفیل: پروفیل‌های ساده، پیچیده، توپر، توخالی یا نیمه توخالی.

  مواد: نوع آلومینیوم مورد استفاده و خواص مکانیکی مورد نیاز.

  کاربرد نهایی: ویژگی‌های خاصی که پروفیل باید داشته باشد، مانند استحکام، سبکی، مقاومت به خوردگی و غیره.

  هزینه: بودجه مورد نظر برای ساخت و نگهداری قالب.

  بهره‌وری: نیاز به تولید سریع و حجم بالا.

 

 

مزایای قالب پرس اکستروژن آلومینیوم

تولید پروفیل‌آلومینیوم با اشکال فرم های پیچیده  و با جزئیات دقیق

 تنوع در مقاطع: با تغییر قالب، امکان تولید مقاطع متنوع و مطابق با نیازهای مختلف صنعتی فراهم می‌شود.

 کیفیت سطحی بالا: فرآیند اکستروژن با قالب‌های مناسب می‌تواند پروفیل‌هایی با کیفیت سطحی بالا و دقت ابعادی عالی تولید کند.

 بهره‌وری بالا: فرآیند اکستروژن آلومینیوم با استفاده از قالب‌های مناسب می‌تواند در افزایش سرعت تولید و بهره وری تاثیر چشمگیری داشته باشد  

 

عوامل کاهش عمر قالب اکستروژن آلومینیوم

یکی از مهمترین چالش های فرآیند تولید پروفیل آلومینیوم، سایش ابزار و در نتیجه کاهش عمر قالب اکستروژن است

سایش ابزار قالب‌های اکستروژن آلومینیوم یک چالش رایج است که سازندگان قالب با آن مواجه هستند. این مسئله می‌تواند به عوامل متعددی نسبت داده شود، از جمله:

  فشار اکستروژن بالا: فشار شدید وارد شده بر قالب در طی فرآیند اکستروژن باعث اصطکاک و تنش می‌شود که به مرور زمان منجر به سایش می‌شود.

  دمای اکستروژن بالا: دماهای بالا در طی فرآیند اکستروژن می‌تواند باعث انبساط حرارتی شود و تنش بیشتری بر اجزای قالب وارد کند.

  خواص ماده: سختی و خراشندگی آلیاژ آلومینیومی که اکسترود می‌شود می‌تواند به سایش ابزار کمک کند.

  روانکاری نامناسب و کافی: روانکاری ناکافی یا نامناسب بین قالب و ماده اکسترود شده می‌تواند منجر به افزایش اصطکاک و سایش سریع‌تر شود.

 

راه‌حل‌ها برای افزایش عمر قالب اکستروژن

 افزایش طول عمر و دوام قالب اکستروژن آلومینیوم یکی دیگر از چالش های فرآیند اکستروژن و تولید پروفیل آلومینیوم است که با عملیاتی کردن چند نکته تاثیر گزار و تا حدودی تعیین کننده  می توان  روند پیری و استعلاک قالب اکستروژن را کندتر و طول عمر و دوام قالب اکستروژن را افزایش داد که شامل:

  انتخاب مواد: انتخاب یک فولاد با کیفیت بالا و مقاوم در برابر سایش برای قالب می‌تواند به افزایش عمر آن کمک کند.

  عملیات حرارتی: عملیات حرارتی مناسب قالب می‌تواند سختی و مقاومت آن در برابر سایش را بهبود بخشد.

  روانکاری: روانکاری کافی و مناسب در طی فرآیند اکستروژن می‌تواند اصطکاک را کاهش دهد و سایش ابزار را کم کند.

  طراحی دقیق قالب: طراحی قالب به گونه‌ای که فشار به طور یکنواخت در سطح آن توزیع شود می‌تواند به حداقل رساندن تنش و سایش کمک کند.

  پایش مستمر : بازرسی دوره‌ای، تمیز کردن و پولیش قالب می‌تواند به افزایش عمر آن کمک کند با از بین بردن آلودگی‌های انباشته شده

 

اعوجاج پروفیل آلومینیوم (Distortion) و انحراف قالب اکستروژن

اعوجاج پروفیل آلومینیوم (Distortion) می‌تواند در طی فرآیند اکستروژن آلومینیوم به دلایل متعددی رخ دهد:

  توزیع نامنظم فشار: وقتی فشار وارد شده بر قالب به طور یکنواخت توزیع نشده باشد، می‌تواند باعث اعوجاج پروفایل اکسترود شده شود.

  انحراف قالب: فشار شدید در طی اکستروژن می‌تواند باعث انحراف یا خمش قالب شود که منجر به اعوجاج پروفایل می‌شود.

  انبساط حرارتی: تفاوت در دما در سراسر قالب می‌تواند منجر به انبساط حرارتی نامنظم شود و باعث اعوجاج پروفایل اکسترود شده شود.

 

راه‌حل‌ها برای کاهش اعوجاج پروفیل آلومینیوم (Distortion)

  طراحی بهینه قالب اکستروژن : طراحی دقیق قالب به گونه‌ای که فشار به طور یکنواخت توزیع شود می‌تواند به حداقل رساندن اعوجاج در پروفایل اکسترود شده کمک کند.

  کنترل دما: حفظ دمای یکنواخت در سراسر قالب می‌تواند خطر اعوجاج ناشی از انبساط حرارتی را کاهش دهد.

  ساختار قالب تقویت شده : استفاده از ساختار قالب سخت‌تر و مقاوم‌تر می‌تواند به حداقل رساندن انحراف در شرایط فشار بالا کمک کند.

  کنترل فرآیند: تنظیم پارامترهای اکستروژن مانند سرعت و دما می‌تواند به کنترل اعوجاج در طی فرآیند کمک کند.

 

 

 

 

 

 

 

 

 

 

 

 

 جهت مشاوره و یا سفارش قالب اکستروژن آلومینیوم 

 

 با کارشناسان و متخصصین مجتمع صنعتی آلوم فرم برای مشاوره و انتخاب درست لطفا تماس بگیرید بهترین متریال  با کمترین قیمت همراه با ضمانت کیفیت و ارسال سریع به تمامی نقاط کشور 

 

 

 

 

 

 

کیفیت سطح نهایی

 کیفیت سطح پروفیل آلومینیوم اکسترود شده می‌تواند تحت تأثیر عوامل متعددی قرار گیرد:

  مواد و سطح قالب اکستروژن : کیفیت و سطح نهایی خود قالب نقش قابل توجهی در تعیین سطح نهایی پروفیل اکسترود شده دارد.

  سرعت و دمای اکستروژن: سرعت‌و دمای بالای اکستروژن می‌تواند باعث افزایش اصطکاک شود که منجر کاهش کیفیت سطح می شود

  نوع آلیاژ: آلیاژ آلومینیوم خاصی که اکسترود می‌شود می‌تواند بر سطح نهایی حاصل تأثیر بگذارد.

 

راه‌حل‌ها برای بهبود کیفیت سطح

  پولیش قالب: پولیش و نگهداری منظم قالب می‌تواند به حفظ سطح نهایی صاف در پروفیل اکسترود شده کمک کند.

  بهینه‌سازی فرآیند: تنظیم پارامترهای اکستروژن مانند سرعت و دما می‌تواند به بهبود سطح نهایی پروفیل اکسترود شده موثر باشد

  روانکاری: روانکاری مناسب در طی فرآیند اکستروژن می‌تواند اصطکاک را کاهش داده و سطح نهایی را بهبود بخشد.

  عملیات‌های پس از اکستروژن: فرآیندهای تکمیلی اضافی مانند آنودایزینگ یا پوشش پودری می‌توانند در  بهبود سطح نهایی و کیفیت پروفایل اکسترود شده تاثیر زیادی داشته باشد.

 

نگهداری و تعمیر قالب پرس اکستروژن آلومینیوم

نگهداری و تعمیر صحیح  قالب پرس اکستروژن آلومینیوم نقش کلیدی در تولید پروفیل‌های آلومینیومی با کیفیت بالا دارد و می‌تواند به طور قابل توجهی بر عملکرد و بهره‌وری فرآیند اکستروژن تأثیر بگذارد

برای حفظ عملکرد و دوام قالب‌ها، باید به نکات زیر توجه کرد

  پایش مستمر و منظم : قالب‌ها باید به طور منظم بازرسی شوند تا هر گونه سایش، ترک یا آسیب به موقع تشخیص داده شود.

  تمیزکاری: قالب‌ها باید به طور منظم تمیز شوند تا از تجمع مواد زائد و کاهش کیفیت سطح جلوگیری شود.

  نیتراسیون: نیتراسیون قالب اکستروژن یک فرآیند کلیدی است که می‌تواند به طور قابل توجهی عملکرد و دوام قالب‌ها را بهبود بخشد. این فرآیند با افزایش سختی سطحی و مقاومت در برابر سایش و خوردگی، می‌تواند کیفیت پروفیل‌های تولید شده و بهره‌وری کلی فرآیند اکستروژن را افزایش دهد..

  تعمیر و بازسازی: در صورت نیاز، قالب‌ها باید تعمیر و بازسازی شوند تا عمر مفید آن‌ها افزایش یابد.

 

فناوری‌های جدید در ساخت قالب اکستروژن

 با فناوری های جدید به احتمال قریب به یقین تحول اساسی در ساخت قالب اکستروژن  و همچنین تولید پروفیل آلومینیوم ایجاد خواهد شد این تغییرات منجر به تولید پروفیل آلومینیوم با اشکال پیچیده تر و کاربرد بیشتر، بالا رفتن سرعت تولید و کاهش هزینه تولید  خواهد شد فناوری های جدید مانند:

  پرینت سه‌بعدی (3D Printing): استفاده از تکنولوژی پرینت سه‌بعدی برای ساخت سریع‌تر و ارزان‌تر قالب‌های پیچیده.

  ماشین‌کاری با لیزر (Laser Machining): استفاده از لیزر برای برش و ماشین‌کاری دقیق قطعات قالب.

  رباتیک و اتوماسیون (Robotics and Automation): استفاده از سیستم‌های رباتیک برای افزایش دقت و کارایی در فرآیند ساخت قالب.

 

فرآیند اکستروژن 

اکستروژن یا برون ریزی، یکی از روش های حجمی برای تغییر شکل مواد برای کاهش ضخامت یا سطح مقطع آنهاست. که در نتیجه قطعاتی با سطح مقطع صاف تولید می شوند. جهت انجام فرآیند اکستروژن، ماده اولیه موردنظر، به درون قالب اکستروژن فشرده می شود و قطعه اکسترود شده با سطح مقطع قالب تولید می شود.فرآیند اکستروژن می تواند با دو روش مسقیم و غیر مستقیم  انجام شود.

 

قالب اکسترود آلومینیوم

 فرایند اکسترود آلومینیوم فرایندی است که با استفاده از فشار و برش به قطعات فلزی شکل می دهد. قالب های اکستروژن آلومینیوم در هر شکل و حالتی ساخته می شوند. مهم ترین هدف در ساخت قالب های اکستروژن، دستیابی به مقطع پروفیل آلومینیوم موردنظر مشتری از نظر ابعاد و اندازه نقشه با دقت بالا می باشد. اکستروژن آلومینیوم به دلیل پایین بودن هزینه ابزار آلات روشی مقرون به صرفه تر است.

 

 

 

 

 

ثبت نظر

برای مشاوره تماس بگیرید.آلوم فرم

 

آلوم فرم با استفاده از مدرن ترین و بروزترین سیستم منطبق بر استانداردهای روز ، تمامی نیازهای شما مشتریان و صنعتگران عزیز را ایجاد کنیم و همچنین با اعتماد و حمایت شما توانسته ایم مجموعه ای منظم با تکیه بر بروز ترین ابزار آلات الکترواستاتیک برپا کنیم خدمات ما : تولید پروفیل آلومینیوم اختصاصی و براساس سفارش شما ، تولید انواع پروفیل الومینیوم عمومی ، خدمات رنگ پودری الکترواستاتیک و طراحی و ساخت اواع درب اتوماتیک شیشه

 

                               

 

 

 

ارتباط با ما

 

آدرس : جاده ساوه ,سه راه آدران,به سمت شهریار, شهرک صنعتی زواره ای

         

   09123794374- 09122645327   

 

کالای شما به سبد خریدتان اضافه شد

تعداد